newsletter reklama kontakt forum
sobota 25 październik 2025

Projekt domu Wędzarnia W03 KRH1276

Pow. użytkowa 20,8 m2 Kubatura 63,2 m3 Wysokość domu 4,23 m
Pow. zabudowy 20,8 m2 Kąt nach. dachu 35 st
Projekt domu Wędzarnia W03 progress

Opis projektu

Wędzarnia z grillem zadaszona Wędzarnie zaprojektowano na rzucie prostokąta. Czterospadowy dach stanowi świetną ochroną przed słońcem i deszczem. Wędzarnia wyposażona jest w półki i blaty do przygotowywania posiłków oraz schowki na drewno. Może służyć zarówno celom rekreacyjnym, jak i pełnić funkcje kuchni polowej dla miłośników domowych wędlin i grillowanych potraw.

Projekt został
wycofany z oferty

W razie pytań prosimy o kontakt
z Centrum Obsługi Klienta tel: 52 523 93 99

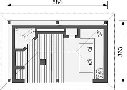
Rzut kondygnacji projektu Wędzarnia W03 - Rzut parteru

1 wędzarnia: 20,8 m2

Przekrój

Technologia budowy domu


Ściany wykonano z cegły. Palenisko, komora wędzalnicza, gril zbudowana z cegły szamotowej, pozostałe części cegła pełna. Blaty z litego kamienia.
autor: Archigraph

Elewacje

Serwis prowadzi Extradom.plRegulaminPolityka prywatności

Home
Newsletter
Reklama
Partnerzy
Materiały do pobrania
Kontakt
Wszelkie prawa zastrzeżone
www.oBud.pl

Wydawca:

Nevicom Sp. z o.o.
ul. R. Kaczmarczyka 17
85-796 Bydgoszcz
tel./fax: 052/ 321 12 80
NIP: 5542920610
KRS: 0000454504