Opis projektu
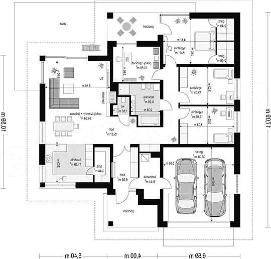
Projekt domu Doskonały to projekt domu jednorodzinnego, parterowego, przeznaczonego dla cztero-pięcioosobowej rodziny. Rzut budynku został oparty na planie litery T. Bryła przekryta jest łagodnym wielospadowym dachem. Nowoczesna architektura domu koresponduje z funkcjonalnie zaprojektowanym wnętrzem. Elewacje zostały przedzielone na wysokości nadproży okien poziomym pasem otaczającym cały dom. Ładne szerokie przeszklenia uzupełniają fragmenty ścian wyłożonych drewnianą okładziną. Całość zestawiona jest z jasną podbitką pod okapami dachów i szarą płaską dachówką na połaciach dachowych. Bryła projektu Doskonały została urozmaicona frontowym podcieniem wejściowym z reprezentacyjnymi drzwiami z naświetlem, oraz od strony ogrodowej - podcieniem zadaszającym fragment tarasu i narożnymi przeszkleniami salonu i sypialni rodziców. Dom wygląda zgrabnie i proporcjonalnie z każdej strony. Od frontu robi reprezentacyjne, dostojne wrażenie, a od strony ogrodowej jest przytulny, ciepły i idealnie łączy się z okalającymi tarasami i zielenią. Wnętrze domku zaprojektowano dzieląc go na trzy części : cześć dzienną, gospodarczą i sypialnianą. Do domu wchodzimy przez obszerną sień, z której przechodzimy się na wprost, przeszklonymi szerokimi drzwiami do holu i części dziennej, lub w bok - do części gospodarczej, z kotłownią, dwustanowiskowym garażem i strychem gospodarczym dostępnym z garażu. Część dzienna domu to połączone pomieszczenia salonu, kuchni i holu. Ładna kuchnia, z wielkim narożnym oknem, ścianą w pełnej zabudowie AGD, pomieszczeniem spiżarni i półwyspem z blatów kuchennych stanowić będzie ozdobę przestrzeni dziennej. Salon ze ścianę kominkowo-telewizyjną, dużym stołem jadalnym otwiera się na taras i ogród wielkim narożnym przeszkleniem. Po drugiej stronie holu korytarzem przechodzimy do części prywatnej domowników. Na końcu znajduje się urocza sypialnia rodziców z dwiema garderobami i bezpośrednim wyjściem do ogrodu, obok dodatkowy pokój - gabinet z oknem na ogród, dalej dwie sypialnie dzieci, duża łazienka i wc dostępna z holu. Wnętrze, choć niewielkie, mieści w sobie bogaty program funkcjonalny dla pełnej rodziny. Nad parterem znajduje się dodatkowy strych, który przy pewnej adaptacji można wykorzystać dodatkowo na cele użytkowe. Albo może pozostać domowym magazynem - zawsze przydatnym. Dom ma dość prostą konstrukcję, jest parterowy - będzie niedrogi w budowie i późniejszym utrzymaniu. Projekt domu Doskonały – to doskonała propozycja dla Inwestorów planujących budowę nie za dużego, ale komfortowego parterowego domu dla swojej rodziny.