newsletter reklama kontakt forum
niedziela 19 październik 2025

Projekt domu G151 - Budynek gospodarczy PRA1232

kontakt - projekty domów | projekty.obud.pl/

Joanna Skoczylas - Kunda

Porady, oferty, zamówienia

Jak zamówić projekt?

52 523 93 99

pn - pt 8 - 22, sb - nd 10 - 18

Pow. użytkowa 189,28 m2 Kubatura 723,6 m3 Wysokość domu 7,05 m
Pow. zabudowy 117 m2 Min. szer. działki 26 m Kąt nach. dachu 10 st
Projekt domu G151 - Budynek gospodarczy progress

Opis projektu

Projekt budynku parterowego, niepodpiwniczonego ze strychem i trzema pomieszczeniami gospodarczymi. Do projektu dołączone jest zestawienie: stali, więźby dachowej oraz stolarki drzwiowej i okiennej, jak również bezpłatna zgoda na dokonanie zmian.

Kup teraz projekt

Cena: 2190 zł

Rzut kondygnacji projektu G151 - Budynek gospodarczy - Rzut parteru

1 pomieszczenie gospodarcze: 80,67 m2
2 pomieszczenie gospodarcze: 15,73 m2
3 pomieszczenie gospodarcze: 7,6 m2

Rzut kondygnacji projektu G151 - Budynek gospodarczy - Rzut poddasza

1 strych: 85,28 m2 (105,08 m2)

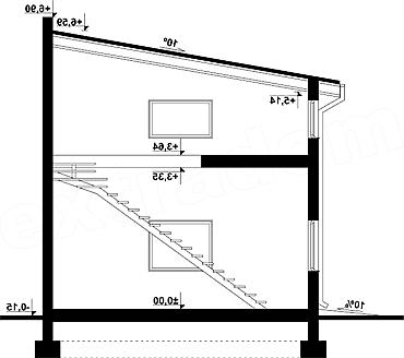
Przekrój

Technologia budowy domu


Budynek wykonany w technologii tradycyjnej. Ściany murowane z bloczków z betonu komórkowego grubości 24cm i 12cm. Brama o wymiarach 3,00×3,00m. Strop gęstożebrowy „TERIVA NOVA”. Komin z cegły ceramicznej pełnej. Więźba dachowa jednospadowa, drewniana, pokryta blachą trapezową.
autor: Kup Projekt

Elewacje

Serwis prowadzi Extradom.plRegulaminPolityka prywatności

Home
Newsletter
Reklama
Partnerzy
Materiały do pobrania
Kontakt
Wszelkie prawa zastrzeżone
www.oBud.pl

Wydawca:

Nevicom Sp. z o.o.
ul. R. Kaczmarczyka 17
85-796 Bydgoszcz
tel./fax: 052/ 321 12 80
NIP: 5542920610
KRS: 0000454504